-
朽網小学校
徒歩約4分(約270m)
-
駐車場
3台確保
-
全ての水を浄水にします
全館浄水システム導入
新生活応援キャンペーン
開催中!
資料請求・来場予約受付中
販売価格
3,298万円(税込)
土地面積166.56㎡(約50.38坪)
建物面積105.98㎡(約32.05坪)
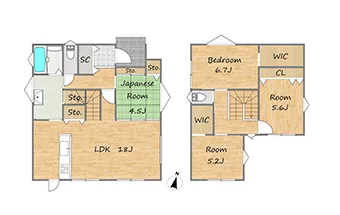
間取4LDK
周辺環境
-

朽網小学校
徒歩約4分/約270m
-

南曽根中学校
徒歩約12分/約800m
-

朽網保育園
徒歩約13分/約1.0km
-

くさみ幼稚園
徒歩約15分/約1.1km
-

JR日豊本線「朽網」駅
徒歩約8分/約600m
-

セブンイレブン 小倉くさみ駅前店
徒歩約8分/約600m
-

ゆめマート 朽網
徒歩約9分/約600m
-

朽網簡易郵便局
徒歩約9分/約700m
物件概要
■全体概要
- 物件名
- YUMIE朽網西5丁目
- 金額
- 3,298万円(税込)
- 所在地
- 北九州市小倉南区朽網西5丁目37-6付近
- 間取
- 4LDK
- 土地面積
- 166.56㎡(約50.38坪)
- 建物面積
- 105.98㎡(約32.05坪)
- 交通
- JR日豊本線「朽網」駅 徒歩約8分
- 地目
- 宅地
- 用途地域
- 第一種低層住居専用地域
- 建蔽率
- 50%
- 容積率
- 80%
- 総区画
- 1区画
- 分譲後の権利形態
- 所有権
- 私道負担
- なし
- 接道・道路幅員
- 北側/6.05m公道
- 設備・施設
- 電気・水道・下水(オール電化)
- 構造
- 木造ガルバリウム鋼板葺2階建て
- 駐車場
- 3台(1区画)
- 完成時期
- 2025年9月
- 建築確認番号
- 第KJH24-02445-2号
- 売主
- 株式会社不動産のデパートひろた
〒805-0017 福岡県北九州市八幡東区山王1丁目11番1号
TEL:093-663-3939 FAX:093-663-3940
国土交通大臣(5)第6432号 (公社)福岡県宅地建物取引業協会 (公社)全国宅地建物取引業保証協会






